Zavolejte nám
724 618 108
Napište nám
eshop@emas.cz
Obecné kontakty
Zobrazit
Sociální sítě
facebook instagram
Změna zobrazení produktů

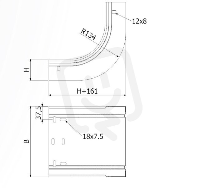
Koleno stoupající žlabu LINEAR+ KSL-1B 150/100 ''SZ'' ARKYS ARB-14290148

Dostupnost EMAS:
skladem méně než 5 ks
Zobrazit dostupnost na prodejnách
Původně:
426,54 Kč
Cena po registraci:
380,84 Kč/ks
Po registraci bez DPH:
314,74 Kč
Vaše cena s DPH:
396,67 Kč/ks
Vaše cena bez DPH:
327,83 Kč/ks
ks
Máte IČ? Získejte ještě výhodnější ceny!

Obecné parametry

Značka:
Arkys
Kód zboží:
ELOSOS1444008
Kód dodavatele:
ARB-14290148
EAN:
8434453032073
Standardní balení:
1 ks
Recyklační poplatek:
0,00 Kč
Produktová řada:
LINEAR+

Technické parametry

Kabelová šířka:
150 mm
Kabelová výška:
100 mm
Materiál:
ocel
Perforace boční stěny:
ne
Povrchová ochrana:
sendzimir pozink
Provedení:
bez spojky
Spodní perforace:
ne
Úhel:
90 °
Vnitřní poloměr:
134 mm
Změna směru:
svisle stoupá

Koleno stoupající žlabu LINEAR+ KSL-1B 150/100 ''SZ'' ARKYS ARB-14290148

Koleno stoupající žlabu LINEAR+ KSL-1B 150/100 "SZ" ARKYS ARB-14290148 (EAN 8434453032073) je určeno pro vedení kabelů při svislém stoupání 90°.

Vyrobeno z oceli s sendzimir pozink povrchovou ochranou, disponuje kabelovou šířkou 150 mm, kabelovou výškou 100 mm a vnitřním poloměrem 134 mm.

Provedení je bez spojky a konstrukce neobsahuje perforaci boční stěny ani spodní perforaci.

Proč si vybrat toto koleno stoupajícího žlabu?

  • Konstrukce je zhotovena z oceli, což přináší spolehlivou mechanickou odolnost.
  • Určeno pro kabelovou výšku 100 mm, takže pojme běžné kabelové svazky.
  • Umožňuje uložení kabelů do šířky 150 mm pro přehledné uspořádání vedení.
  • Boční stěna je neperforovaná, čímž poskytuje uzavřené krytí bez otvorů.
  • Patří do produktové řady LINEAR+, kompatibilní s ostatními prvky stejné řady.
  • Má vnitřní poloměr 134 mm, který usnadňuje hladký přechod kabelů při změně směru.

Interní název produktu

Koleno stoupající žlabu LINEAR+ KSL1B (R


Podrobný popis produktu

Koleno stoupající žlabu LINEAR+ KSL-1B 150/100 "SZ"

Pro vytvoření vertikálně tvarovaného prvku trasy - přechod mezi horizontální a vertikální (stoupačkovou) částí kabelové trasy.

Dostupnost na prodejnách

Dostupnost centrální sklady EMAS
Centrální sklad Ostrava méně než 5 ks skladem

Zobrazit přesnou dostupnost na prodejnách

V porovnávači máte 0 produktů.

Zobrazit porovnání