Zavolejte nám
724 618 108
Napište nám
eshop@emas.cz
Obecné kontakty
Zobrazit
Sociální sítě
facebook instagram
Změna zobrazení produktů

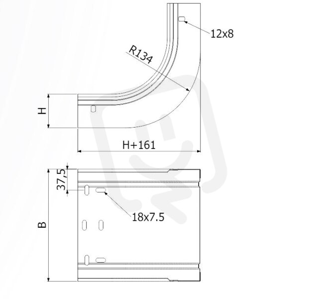
Koleno stoupající žlabu LINEAR+ KSL-1B 300/100 ''SZ'' ARKYS ARB-14290151

Dostupnost EMAS:
skladem méně než 5 ks
Zobrazit dostupnost na prodejnách
Původně:
515,45 Kč
Cena po registraci:
460,22 Kč/ks
Po registraci bez DPH:
380,35 Kč
Vaše cena s DPH:
479,37 Kč/ks
Vaše cena bez DPH:
396,17 Kč/ks
ks
Máte IČ? Získejte ještě výhodnější ceny!

Obecné parametry

Značka:
Arkys
Kód zboží:
ELOSOS1444010
Kód dodavatele:
ARB-14290151
EAN:
8434453032394
Standardní balení:
1 ks
Recyklační poplatek:
0,00 Kč
Produktová řada:
LINEAR+

Technické parametry

Kabelová šířka:
300 mm
Kabelová výška:
100 mm
Materiál:
ocel
Perforace boční stěny:
ne
Povrchová ochrana:
sendzimir pozink
Provedení:
bez spojky
Spodní perforace:
ne
Úhel:
90 °
Vnitřní poloměr:
134 mm
Změna směru:
svisle stoupá

Koleno stoupající žlabu LINEAR+ KSL-1B 300/100 ''SZ'' ARKYS ARB-14290151

Koleno stoupající žlabu LINEAR+ KSL-1B 300/100 "SZ" ARKYS ARB-14290151 (EAN: 8434453032394) je určeno pro změnu směru kabeláže při svislém stoupání s úhlem 90°.

Vyrobené z oceli s povrchovou ochranou sendzimir pozink, má kabelovou výšku 100 mm, kabelovou šířku 300 mm a vnitřní poloměr 134 mm.

Provedení bez spojky, změna směru svisle stoupá, bez boční a spodní perforace a součást produktové řady LINEAR+.

Proč si vybrat toto koleno stoupajícího žlabu?

  • Vyrobeno z oceli.
  • Umožňuje uložení kabelů do výšky 100 mm.
  • Poskytuje prostor pro kabely o šířce 300 mm.
  • neperforovanou boční stěnu.
  • Patří do produktové řady LINEAR+.
  • Nabízí vnitřní poloměr 134 mm, který zajišťuje plynulé vedení kabelů.

Interní název produktu

Koleno stoupající žlabu LINEAR+ KSL1B (R


Podrobný popis produktu

Koleno stoupající žlabu LINEAR+ KSL-1B 300/100 "SZ"

Pro vytvoření vertikálně tvarovaného prvku trasy - přechod mezi horizontální a vertikální (stoupačkovou) částí kabelové trasy.

Dostupnost na prodejnách

Dostupnost centrální sklady EMAS
Centrální sklad Ostrava méně než 5 ks skladem

Zobrazit přesnou dostupnost na prodejnách

V porovnávači máte 0 produktů.

Zobrazit porovnání